Здание под автосалон, автосервис 1940 м²

ул им. Карла Либкнехта, д. 19А

1 164 000 руб.

?

$ 1 086

€ 979

600 руб./м²


1940 м²

1/2 этажей

Код объекта

121807

Предложение доступно для субагентов, авторизуйтесь

Здание под автосалон, автосервис 1940 м²

Код объекта: 121807.
Тип объекта: Отдельно стоящее здание.
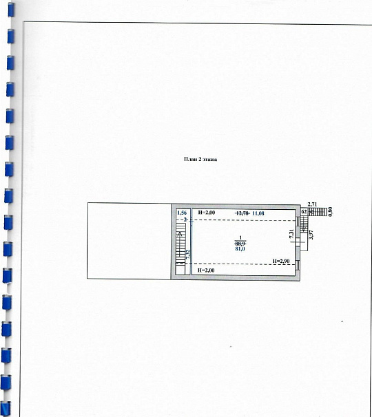
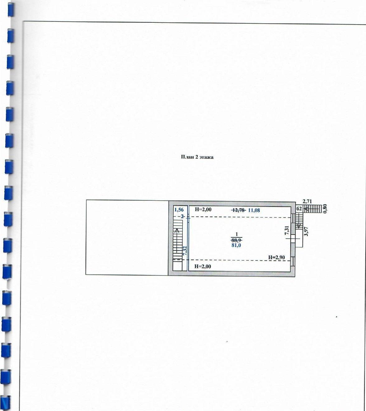
Площадь: 1940 м².
Этаж / Этажность: 1 / 2.

Описание и характеристики


ОТ СОБСТВЕННИКА, БЕЗ КОМИССИИ!

Ищете масштабный объект под торговлю, производство или склад? Предлагаем отдельно стоящее здание  — бывший современный автосалон и автосервис, полностью готовый к перезапуску бизнеса без капитальных вложений!

В площадь здания входит:
- шоу-рум – 421,4 м2;
- офисы - 496,4 м2;
- автомойка - 86,1 м2;
- техническое обслуживание– 936,1 м2.

Объект оснащён 3 воротами для приемки и выдачи автомобилей , 2 поста автомоек, 6 автоподъемников,  и т.д. Все оборудование в исправном состояние.
По периметру автосалона имеется около 130 машинных мест.
Автосалон, оснащен всеми необходимыми инженерными системами (отопление, водопровод, канализации, вентиляции, кондиционирование).
Возможна аренда частями.

Почему это здание — ваш лучший выбор:
Внушительная площадь — 1940 м² с продуманной планировкой: просторные залы, технические зоны, офисы, складские помещения.
Полная автономность — отдельное здание, полный контроль над эксплуатацией.
Все коммуникации — электричество (380 В), водоснабжение, канализация, отопление, вентиляция подключены и проверены.
Идеальная логистика — широкие подъездные пути, несколько ворот для грузового транспорта, просторная парковка, зона разгрузки.
Прочная конструкция — капитальные стены, высокие потолки, надёжные перекрытия, рассчитанные на серьёзные нагрузки.
Удобная локация — расположение с отличной транспортной доступностью.
Готовность к работе — не требует капитального ремонта, можно заезжать сразу после подписания договора.
Юридическая чистота — полный пакет документов, отсутствие обременений, быстрая сделка.
Гибкость использования — планировка легко адаптируется под новые задачи.

Что вы получаете «под ключ»:
капитальное здание с готовой инфраструктурой;
доступ ко всем инженерным системам;
возможность размещения вывески и рекламных конструкций на фасаде;
юридически чистый объект с полным пакетом документов;
консультации по оптимальному зонированию пространства;

Идеально подходит для:
- дилерского автосалона,
- автоцентра (сервис, мойка, продажа);
-  автосервиса;
- торгового комплекса или гипермаркета;
- логистического центра или распределительного хаба;
- производственного цеха ;
- оптового склада с зоной отгрузки;
- выставочного зала или демонстрационного центра;
- многофункционального бизнес‑парка;
- спортивного комплекса или фитнес‑хаба;
производственно‑складской базы с офисами;

Наши условия аренды:
прямая аренда от собственника — без комиссий посредников;
гибкие сроки договора — от 11 месяцев с возможностью продления;
оперативный заезд — готовы сдать в течение суток после подписания договора;

Почему нельзя откладывать решение:
Уникальное предложение — здания такого формата и площади в хороших локациях появляются крайне редко.
Экономия на старте — не нужно тратиться на черновые работы и подключение коммуникаций.
Быстрый запуск — можно начать работу сразу после подписания договора.
Масштабируемость — площадь позволяет развивать бизнес без переезда.
Готовая инфраструктура — ранее использовалось как автосалон/сервис, все зоны продуманы для эффективной работы.

Звоните прямо сейчас! Организуем показ в удобное время, предоставим техническую документацию и ответим на все вопросы.

Перейти в карточку объекта в CRM: 121807.

АРР Волгоград

+7 937 537-87-41

или оставьте ваш номер, и я перезвоню в течение 30 минут

Отправляя заявку вы соглашаетесь на обработку персональных данных

1 164 000 руб.

?

$ 14 599

€ 12 626

600 руб./м²


1940 м²

1/2 этажей

Код объекта

121807

Предложение доступно для субагентов, авторизуйтесь

АРР Волгоград

+7 937 537-87-41

или оставьте ваш номер, и я перезвоню в течение 30 минут

Отправляя заявку вы соглашаетесь на обработку персональных данных

Похожие объявления

Посмотреть все похожие объявления
1/15
Код объекта: 209296.
Тип объекта: Отдельно стоящее здание.
Площадь: 1184.7 м².
Этаж / Этажность: 1 / 4.
1/24
Код объекта: 373102.
Тип объекта: Отдельно стоящее здание.
Площадь: 1459 м².
Этаж / Этажность: 1 / 2.
1/8
Код объекта: 356576.
Тип объекта: Отдельно стоящее здание.
Площадь: 2000 м².
Этаж / Этажность: 1 / 1.
1/24
Код объекта: 373102.
Тип объекта: Отдельно стоящее здание.
Площадь: 1459 м².
Этаж / Этажность: 1 / 2.
1/5
Код объекта: 228587.
Тип объекта: Отдельно стоящее здание.
Площадь: 152 м².
Этаж / Этажность: 1 / 1.
1/12
Код объекта: 233688.
Тип объекта: Помещение свободного назначения.
Площадь: 170.9 м².
Этаж / Этажность: 2 / 2.
1/44
Код объекта: 214086.
Тип объекта: Офисное помещение.
Площадь: 463.1 м².
Этаж / Этажность: -1 / 8.
1/10
Код объекта: 209578.
Тип объекта: Торговое помещение.
Площадь: 47.7 м².
Этаж / Этажность: 1 / 5.
1/9
Код объекта: 209899.
Тип объекта: Торговое помещение.
Площадь: 41.9 м².
Этаж / Этажность: 1 / 5.

Не хочу искать, перезвоните мне!

Оставьте номер телефона, наш специалист свяжется с вами и поможет с подбором недвижимости!