Сдам офисное помещение, 463,1 м²

ул Социалистическая, д. 17

231 550 руб.

?

$ 1 086

€ 979

500 руб./м²


463.1 м²

-1/8 этажей

Код объекта

94198

Предложение доступно для субагентов, авторизуйтесь

Сдам Офисное помещение, 463,1 м²

Код объекта: 94198.
Тип объекта: Офисное помещение.
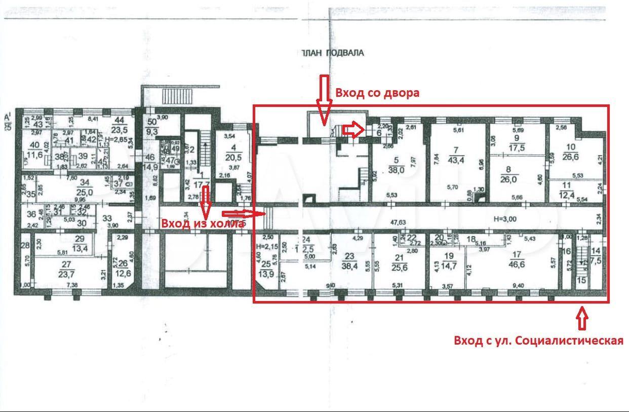
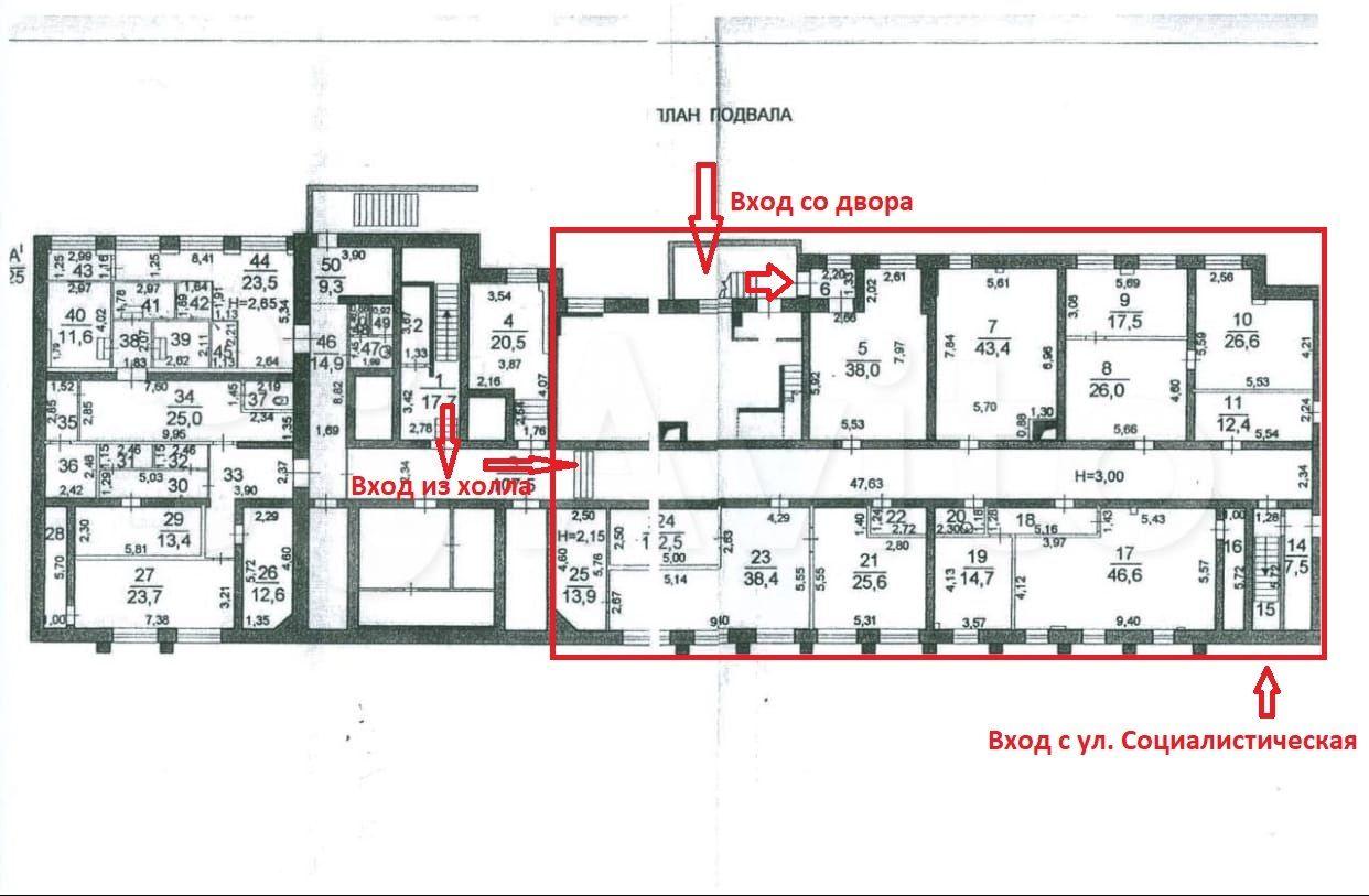
Площадь: 463.1 м².
Этаж / Этажность: -1 / 8.

Описание и характеристики

От собственника без комиссии!!!

Сдается в аренду блок офисных помещений общей площадью 463,1 м2.

- Цокольный этаж, все помещения с окнами;
- Офисы коридорного типа;
- Выполнен хороший ремонт;
- Рядом находится помещение хранилища, сейфовое отделение и кассовые комнаты. Данное помещение соответствует самым высоким требованиям, предъявляемым к банковским помещениям. Их можно снять в аренду вместе с офисным блоком.
- 2 санузла;
- Наземная парковка перед БЦ;
- Коммуникации (теплоснабжение, электроснабжение, водоснабжение, канализация) центральные;
- Вентиляция приточно-вытяжная;
- Прямая аренда от Собственника;
- В пешей доступности Ворошиловский торговый Центр, остановки общественного транспорта, гостиница "Южная", отель Hampton by Hilton «Волгоград Профсоюзная» и парковые зоны;
- Есть несколько входов в помещение: отдельный с улицы, 2 входа со двора, либо через главную входную группу бизнес-центра. Это позволяет разделить помещение на 2 части и арендовать только какую-то одну часть при необходимости.

Звоните, договоримся!!!

Перейти в карточку объекта в CRM: 94198.

АРР Волгоград

+7 937 537-87-41

или оставьте ваш номер, и я перезвоню в течение 30 минут

Отправляя заявку вы соглашаетесь на обработку персональных данных

231 550 руб.

?

$ 2 827

€ 2 411

500 руб./м²


463.1 м²

-1/8 этажей

Код объекта

94198

Предложение доступно для субагентов, авторизуйтесь

АРР Волгоград

+7 937 537-87-41

или оставьте ваш номер, и я перезвоню в течение 30 минут

Отправляя заявку вы соглашаетесь на обработку персональных данных

Похожие объявления

Посмотреть все похожие объявления
1/20
Код объекта: 299888.
Тип объекта: Офисное помещение.
Площадь: 132 м².
Этаж / Этажность: 15 / 26.
1/17
Код объекта: 301725.
Тип объекта: Офисное помещение.
Площадь: 301 м².
Этаж / Этажность: -1 / 5.
1/16
Код объекта: 307118.
Тип объекта: Офисное помещение.
Площадь: 140.4 м².
Этаж / Этажность: 1 / 6.
1/20
Код объекта: 256272.
Тип объекта: Офисное помещение.
Площадь: 272.7 м².
Этаж / Этажность: -1 / 8.
1/4
Код объекта: 256266.
Тип объекта: Торговое помещение.
Площадь: 200 м².
Этаж / Этажность: -1 / 5.
1/14
Код объекта: 289976.
Тип объекта: Бизнес-центр/офисный центр.
Площадь: 56.6 м².
Этаж / Этажность: 2 / 3.
1/28
Код объекта: 293751.
Тип объекта: Отдельно стоящее здание.
Площадь: 482.5 м².
Этаж / Этажность: 1 / 1.
1/18
Код объекта: 224759.
Тип объекта: Помещение свободного назначения.
Площадь: 90 м².
Этаж / Этажность: -1 / 9.

Не хочу искать, перезвоните мне!

Оставьте номер телефона, наш специалист свяжется с вами и поможет с подбором недвижимости!