Сдам торговое помещение в самом сердце Волжского в ТЦ Жираф, 150 м²

Волгоградская обл, г Волжский, ул Мира, д 42с

150 000 руб.

?

$ 1 086

€ 979

1 000 руб./м²


150 м²

1/2 этажей

Код объекта

128748

Предложение доступно для субагентов, авторизуйтесь

Сдам торговое помещение в самом сердце Волжского в ТЦ Жираф, 150 м²

Код объекта: 128748.
Тип объекта: Торговый центр.
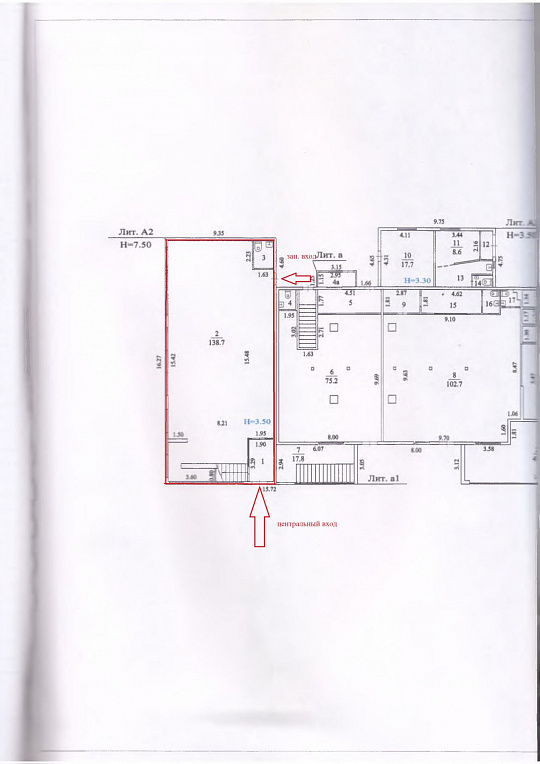
Площадь: 150 м².
Этаж / Этажность: 1 / 2.
Назначения: Земля, Магазин, Услуги.

Описание и характеристики

Сдается торговое помещение в самом сердце Волжского!

Предлагаем в аренду просторные торговые площади150  кв.м. в популярном торговом центре "Жираф", расположенном по адресу: ул. Мира, 42 С.

Преимущества нашего предложения:

Идеальное расположение: Первый этаж, первая линия, центр города – ваш бизнес будет на виду!

Отличная проходимость: Рядом находятся жилой комплекс "Троя", ТРЦ "ВолгаМолл", "Волжский пассаж" и остановки общественного транспорта, что гарантирует постоянный поток посетителей.

Удобство и комфорт: Помещение светлое, теплое, чистое, имеет правильную прямоугольную форму, что позволит максимально эффективно использовать пространство.

Отличная видимость: Фасад выходит на центральную улицу Александрова, предоставляя широкие возможности для размещения вашей рекламы.

Легкий доступ: К зданию примыкает большая парковка для удобства ваших клиентов.

Безопасность: Здание оборудовано современной пожарной сигнализацией.

Это отличная возможность для вашего бизнеса!

Перейти в карточку объекта в CRM: 128748.

АРР Волгоград

+7 937 537-87-41

или оставьте ваш номер, и я перезвоню в течение 30 минут

Отправляя заявку вы соглашаетесь на обработку персональных данных

150 000 руб.

?

$ 2 116

€ 1 813

1 000 руб./м²


150 м²

1/2 этажей

Код объекта

128748

Предложение доступно для субагентов, авторизуйтесь

АРР Волгоград

+7 937 537-87-41

или оставьте ваш номер, и я перезвоню в течение 30 минут

Отправляя заявку вы соглашаетесь на обработку персональных данных

Похожие объявления

Посмотреть все похожие объявления
1/15
Код объекта: 394697.
Тип объекта: Торговый центр.
Площадь: 116 м².
Этаж / Этажность: 1 / 2.
1/29
Код объекта: 426208.
Тип объекта: Торговый центр.
Площадь: 124 м².
Этаж / Этажность: 1 / 9.
1/20
1/16
Код объекта: 433676.
Тип объекта: Торговый центр.
Площадь: 150 м².
Этаж / Этажность: 1 / 1.
1/15
Код объекта: 394697.
Тип объекта: Торговый центр.
Площадь: 116 м².
Этаж / Этажность: 1 / 2.
1/29
Код объекта: 426208.
Тип объекта: Торговый центр.
Площадь: 124 м².
Этаж / Этажность: 1 / 9.
1/20
1/16
Код объекта: 433676.
Тип объекта: Торговый центр.
Площадь: 150 м².
Этаж / Этажность: 1 / 1.
1/5
Код объекта: 228587.
Тип объекта: Отдельно стоящее здание.
Площадь: 152 м².
Этаж / Этажность: 1 / 1.
1/12
Код объекта: 233688.
Тип объекта: Помещение свободного назначения.
Площадь: 170.9 м².
Этаж / Этажность: 2 / 2.
1/44
Код объекта: 214086.
Тип объекта: Офисное помещение.
Площадь: 463.1 м².
Этаж / Этажность: -1 / 8.
1/10
Код объекта: 209578.
Тип объекта: Торговое помещение.
Площадь: 47.7 м².
Этаж / Этажность: 1 / 5.
1/9
Код объекта: 209899.
Тип объекта: Торговое помещение.
Площадь: 41.9 м².
Этаж / Этажность: 1 / 5.

Не хочу искать, перезвоните мне!

Оставьте номер телефона, наш специалист свяжется с вами и поможет с подбором недвижимости!