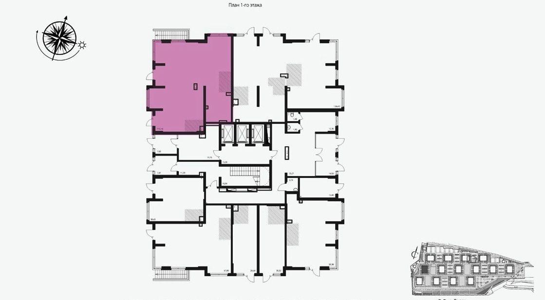
Помещение в новом престижном ЖК, 115,1 м²

ул им. Степана Разина, д. 25/1

34 530 000 руб.

?

$ 1 086

€ 979

300 000 руб./м²


115.1 м²

1/17 этажей

Код объекта

129079

Предложение доступно для субагентов, авторизуйтесь

Помещение в новом престижном ЖК, 115,1 м²

Код объекта: 129079.
Тип объекта: Помещение свободного назначения.
Площадь: 115.1 м².
Этаж / Этажность: 1 / 17.

Описание и характеристики

Продается коммерческое пространство в одном из самых престижных жилищних комплексов города.
Выгодное расположение в новом комфортном жилом комплексе «Берег Волги» — ваш шанс открыть бизнес в месте с высоким потенциалом развития. Помещение свободного назначения полностью готово к эксплуатации и ждёт своего владельца.

Почему это выгодное предложение:
Престижный район — комплекс расположен на берегу Волги с великолепными видами;
Развитая инфраструктура — всё необходимое для бизнеса и жизни в шаговой доступности;
Высокий потенциал — постоянный поток потенциальных клиентов из числа жителей ЖК;
Престижный имидж — расположение в роскошном комплексе повысит статус вашего бизнеса

Технические характеристики:
Площадь помещения: 38,4 м²;
Состояние: готово к въезду;
Коммуникации: все центральные;
Персональная вытяжка;
Расположение: первый этаж ЖК «Берег Волги»;
Парковка: удобная для посетителей.

Преимущества локации:
Живописные виды на Волгу;
Современная набережная для прогулок;
Развитая инфраструктура комплекса:
Удобная транспортная доступность.
Престижное окружение.

Идеально подходит для:
Офиса премиум-класса;
Бутика модной одежды:
Уютного Кафе (наличие вытяжки и необходимой электрической мощности)
Косметологического кабинета;
Медицинского центра.

Финансовые перспективы:
Быстрая окупаемость инвестиций;
Стабильный доход при сдаче в аренду;
Рост стоимости актива со временем;
Минимальные риски при вложении.
Также, вашему вниманию предлагаются другие, пока свободные помещения от 12 до 135 кв.м.

Не упустите возможность приобрести премиальное помещение в одном из самых привлекательных жилых комплексов города. Объект полностью соответствует современным требованиям и ждёт своего владельца.

Перейти в карточку объекта в CRM: 129079.

АРР Волгоград

+7 937 537-87-41

или оставьте ваш номер, и я перезвоню в течение 30 минут

Отправляя заявку вы соглашаетесь на обработку персональных данных

34 530 000 руб.

?

$ 424 148

€ 364 614

300 000 руб./м²


115.1 м²

1/17 этажей

Код объекта

129079

Предложение доступно для субагентов, авторизуйтесь

АРР Волгоград

+7 937 537-87-41

или оставьте ваш номер, и я перезвоню в течение 30 минут

Отправляя заявку вы соглашаетесь на обработку персональных данных

Похожие объявления

Посмотреть все похожие объявления
1/18
Код объекта: 224759.
Тип объекта: Помещение свободного назначения.
Площадь: 90 м².
Этаж / Этажность: -1 / 9.
1/6
Код объекта: 234540.
Тип объекта: Помещение свободного назначения.
Площадь: 135 м².
Этаж / Этажность: 1 / 1.
1/11
Код объекта: 223569.
Тип объекта: Помещение свободного назначения.
Площадь: 88 м².
Этаж / Этажность: 1 / 5.
1/12
Код объекта: 223570.
Тип объекта: Помещение свободного назначения.
Площадь: 87 м².
Этаж / Этажность: 1 / 5.
1/14
Код объекта: 307359.
Тип объекта: Помещение свободного назначения.
Площадь: 109.1 м².
Этаж / Этажность: 1 / 5.
1/20
Код объекта: 256272.
Тип объекта: Офисное помещение.
Площадь: 272.7 м².
Этаж / Этажность: -1 / 8.
1/4
Код объекта: 256266.
Тип объекта: Торговое помещение.
Площадь: 200 м².
Этаж / Этажность: -1 / 5.
1/14
Код объекта: 289976.
Тип объекта: Бизнес-центр/офисный центр.
Площадь: 56.6 м².
Этаж / Этажность: 2 / 3.
1/28
Код объекта: 293751.
Тип объекта: Отдельно стоящее здание.
Площадь: 482.5 м².
Этаж / Этажность: 1 / 1.
1/18
Код объекта: 224759.
Тип объекта: Помещение свободного назначения.
Площадь: 90 м².
Этаж / Этажность: -1 / 9.

Не хочу искать, перезвоните мне!

Оставьте номер телефона, наш специалист свяжется с вами и поможет с подбором недвижимости!