Помещение с ремонтом в новом доме 250-400 м²

ул Ополченская, д. 27б

275 000 руб.

?

$ 1 086

€ 979

1 100 руб./м²


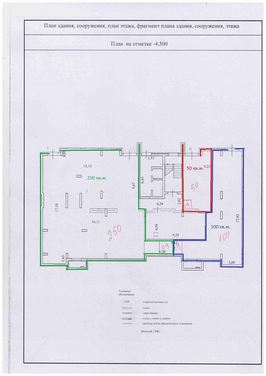
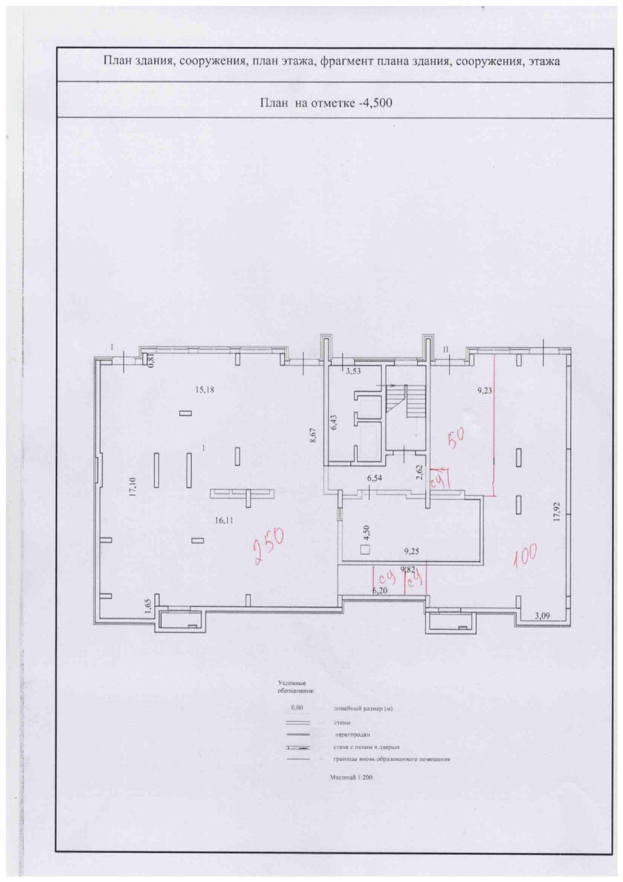
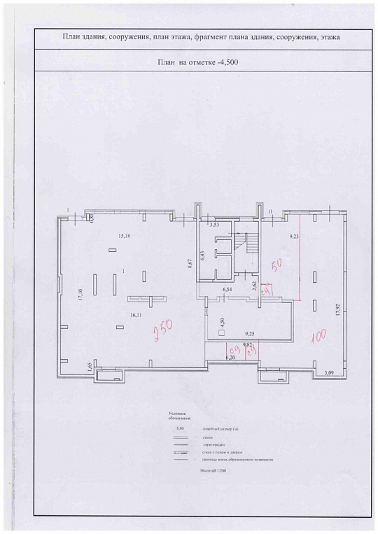
250 м²

1/16 этажей

Код объекта

131074

Предложение доступно для субагентов, авторизуйтесь

Помещение с ремонтом в новом доме 250-400 м²

Код объекта: 131074.
Тип объекта: Помещение свободного назначения.
Площадь: 250 м².
Этаж / Этажность: 1 / 16.

Описание и характеристики

ОТ СОБСТВЕННИКА, БЕЗ КОМИССИИ!!

Ищете прибыльное место для бизнеса с высокой проходимостью? Представляем светлое, просторное помещение с большими витринами — ваш ключ к успеху в коммерции!

Ключевые преимущества:
Выгодная локация — расположение в зоне с высокой пешеходной и автомобильной проходимостью.
Общая площадь 400 м², котоую можно поделить на 250, 100 и 50 м2 с отдельными входами— достаточно места для торгового зала, склада и зоны обслуживания.
Витринные окна — максимальная видимость и привлекательность для прохожих, естественное освещение.
Отдельный вход — удобство для клиентов и независимость работы.
Все коммуникации — электричество, водоснабжение, подключены и готовы к эксплуатации.
Удобная парковка — комфорт для посетителей и поставщиков.
Гибкая планировка — возможность зонирования под ваши задачи.

Что вы получаете сразу после заезда:
полностью готовое к работе пространство;
свободную планировку под торговую точку или салон;
эффектный внешний вид за счёт витринных окон;
доступ к потоку потенциальных клиентов.

Идеально подходит для:
магазина товаров повседневного спроса;
магазина автозапчастей,
- зоомагазина
продуктового супермаркета;
аптеки или оптики;
бутика одежды или обуви;
салона красоты ;
ювелирного магазина;
цветочного салона;
пункта выдачи заказов;
офиса клиентского обслуживания.

Специальные условия аренды:
прямая аренда от собственника — без комиссий посредников;
гибкие сроки договора — обсуждаем индивидуальные условия;

Почему это выгодное предложение:
Снижение рисков — локация уже доказала свою эффективность.
Готовый трафик — место с высокой проходимостью обеспечит приток клиентов.
Универсальность — подходит для разных форматов бизнеса.

Звоните прямо сейчас! Организуем показ в удобное для вас время, ответим на все вопросы и обсудим условия аренды.

Перейти в карточку объекта в CRM: 131074.

АРР Волгоград

+7 937 537-87-41

или оставьте ваш номер, и я перезвоню в течение 30 минут

Отправляя заявку вы соглашаетесь на обработку персональных данных

275 000 руб.

?

$ 3 478

€ 3 009

1 100 руб./м²


250 м²

1/16 этажей

Код объекта

131074

Предложение доступно для субагентов, авторизуйтесь

АРР Волгоград

+7 937 537-87-41

или оставьте ваш номер, и я перезвоню в течение 30 минут

Отправляя заявку вы соглашаетесь на обработку персональных данных

Похожие объявления

Посмотреть все похожие объявления
1/14
Код объекта: 254482.
Тип объекта: Помещение свободного назначения.
Площадь: 435 м².
Этаж / Этажность: -1 / 9.
1/11
Код объекта: 301097.
Тип объекта: Помещение свободного назначения.
Площадь: 215 м².
Этаж / Этажность: 2 / 2.
1/6
Код объекта: 216614.
Тип объекта: Помещение свободного назначения.
Площадь: 250 м².
Этаж / Этажность: 2 / 2.
1/9
Код объекта: 382472.
Тип объекта: Помещение свободного назначения.
Площадь: 345.6 м².
Этаж / Этажность: 1 / 18.
1/17
Код объекта: 300637.
Тип объекта: Помещение свободного назначения.
Площадь: 228.2 м².
Этаж / Этажность: 1 / 9.
1/10
Код объекта: 243374.
Тип объекта: Помещение свободного назначения.
Площадь: 187 м².
Этаж / Этажность: 3 / 5.
1/10
Код объекта: 217997.
Тип объекта: Помещение свободного назначения.
Площадь: 300 м².
Этаж / Этажность: -1 / 2.
1/11
Код объекта: 307340.
Тип объекта: Помещение свободного назначения.
Площадь: 270 м².
Этаж / Этажность: 1 / 1.
1/13
Код объекта: 256274.
Тип объекта: Помещение свободного назначения.
Площадь: 190.4 м².
Этаж / Этажность: -1 / 8.
1/18
Код объекта: 228557.
Тип объекта: Помещение свободного назначения.
Площадь: 246 м².
Этаж / Этажность: 1 / 5.
1/20
Код объекта: 256272.
Тип объекта: Офисное помещение.
Площадь: 272.7 м².
Этаж / Этажность: -1 / 8.
1/4
Код объекта: 256266.
Тип объекта: Торговое помещение.
Площадь: 200 м².
Этаж / Этажность: -1 / 5.
1/14
Код объекта: 289976.
Тип объекта: Бизнес-центр/офисный центр.
Площадь: 56.6 м².
Этаж / Этажность: 2 / 3.
1/16
Код объекта: 220909.
Тип объекта: Торговое помещение.
Площадь: 290 м².
Этаж / Этажность: -1 / 8.
1/14
Код объекта: 301718.
Тип объекта: Помещение свободного назначения.
Площадь: 157.7 м².
Этаж / Этажность: 1 / 10.

Не хочу искать, перезвоните мне!

Оставьте номер телефона, наш специалист свяжется с вами и поможет с подбором недвижимости!