Сдам помещение отдельно стоящем здание, 118 м²

ул им. Алехина, д. 26

95 000 руб.

?

$ 1 086

€ 979

805 руб./м²


118 м²

1/1 этажей

Код объекта

102182

Предложение доступно для субагентов, авторизуйтесь

Сдам помещение отдельно стоящем здание, 118 м²

Код объекта: 102182.
Тип объекта: Отдельно стоящее здание.
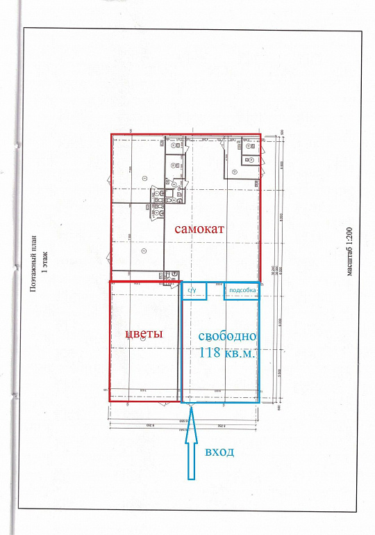
Площадь: 118 м².
Этаж / Этажность: 1 / 1.

Описание и характеристики

АРЕНДА ПОМЕЩЕНИЯ СВОБОДНОГО НАЗНАЧЕНИЯ БЕЗ КОМИССИИ — ОТ СОБСТВЕННИКА!

Краснооктябрьский район, Волгоград.
Хотите открыть бизнес в месте с высокой проходимостью и отличной видимостью? Предлагаем в аренду универсальное помещение с огромным потенциалом!

Почему это выгодное вложение:
Видимость и трафик. Здание расположено вдоль оживлённой автодороги — ваш бренд будет на виду у сотен автомобилистов ежедневно. Фасад идеально подходит для размещения яркой вывески или баннера.

Удобство для клиентов. Рядом остановка общественного транспорта, перед зданием — большая парковка. Клиенты и сотрудники легко доберутся до вас.

Готовность к работе. Помещение с чистовой отделкой, светлое, тёплое, с высокими потолками и правильной планировкой. Можно сразу заезжать и начинать работу или адаптировать пространство под свои нужды — перепланировка разрешена.

Надёжные коммуникации. Автономное газовое отопление обеспечит комфорт в холодное время года, а мощность электросети в 60 кВт позволит подключить необходимое оборудование.

Функциональная зона разгрузки и санузел уже предусмотрены.

Сейчас часть первого этажа занимает онлайн‑магазин «САМОКАТ», что подтверждает коммерческую привлекательность локации.
Используйте помещение как офис, магазин, склад, колл‑центр, фитнес‑клуб или под любой другой бизнес!

НЕ УПУСТИТЕ ШАНС! ЗВОНИТЕ ПРЯМО СЕЙЧАС, ЧТОБЫ ДОГОВОРИТЬСЯ О ПРОСМОТРЕ И ПОЛУЧИТЬ СПЕЦИАЛЬНЫЕ УСЛОВИЯ!

Перейти в карточку объекта в CRM: 102182.

АРР Волгоград

+7 937 537-87-41

или оставьте ваш номер, и я перезвоню в течение 30 минут

Отправляя заявку вы соглашаетесь на обработку персональных данных

95 000 руб.

?

$ 1 215

€ 1 046

805 руб./м²


118 м²

1/1 этажей

Код объекта

102182

Предложение доступно для субагентов, авторизуйтесь

АРР Волгоград

+7 937 537-87-41

или оставьте ваш номер, и я перезвоню в течение 30 минут

Отправляя заявку вы соглашаетесь на обработку персональных данных

Похожие объявления

Посмотреть все похожие объявления
1/10
Код объекта: 233494.
Тип объекта: Отдельно стоящее здание.
Площадь: 227.8 м².
Этаж / Этажность: 1 / 2.
1/6
Код объекта: 233597.
Тип объекта: Отдельно стоящее здание.
Площадь: 147 м².
Этаж / Этажность: 1 / 2.
1/10
Код объекта: 294846.
Тип объекта: Отдельно стоящее здание.
Площадь: 85 м².
Этаж / Этажность: 1 / 1.
1/10
Код объекта: 405669.
Тип объекта: Отдельно стоящее здание.
Площадь: 250 м².
Этаж / Этажность: -1 / 1.
1/6
Код объекта: 233597.
Тип объекта: Отдельно стоящее здание.
Площадь: 147 м².
Этаж / Этажность: 1 / 2.
1/10
Код объекта: 294846.
Тип объекта: Отдельно стоящее здание.
Площадь: 85 м².
Этаж / Этажность: 1 / 1.
1/20
Код объекта: 256272.
Тип объекта: Офисное помещение.
Площадь: 272.7 м².
Этаж / Этажность: -1 / 8.
1/4
Код объекта: 256266.
Тип объекта: Торговое помещение.
Площадь: 200 м².
Этаж / Этажность: -1 / 5.
1/14
Код объекта: 289976.
Тип объекта: Бизнес-центр/офисный центр.
Площадь: 56.6 м².
Этаж / Этажность: 2 / 3.
1/16
Код объекта: 220909.
Тип объекта: Торговое помещение.
Площадь: 290 м².
Этаж / Этажность: -1 / 8.
1/14
Код объекта: 301718.
Тип объекта: Помещение свободного назначения.
Площадь: 157.7 м².
Этаж / Этажность: 1 / 10.

Не хочу искать, перезвоните мне!

Оставьте номер телефона, наш специалист свяжется с вами и поможет с подбором недвижимости!